Жилая недвижимость
Дата начала продаж 27.06.2025 г.
|
№ квартиры |
ед. изм. |
этаж |
площадь квартиры, м2 |
площадь террасы, м2 |
цена за ед. изм., бел.руб. |
стоимость, бел.руб. |
|---|---|---|---|---|---|---|
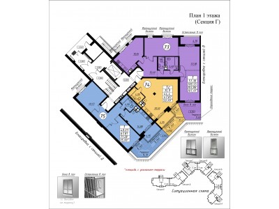
| 29 | м2 | 1 | 103,88 | 11,02 | 2 500 | 267 975,00 |
| 56 | м2 | 1 | 103,70 | 11,02 | 2 480 | 265 384,80 |
| 73 | м2 | 1 | 103,88 | 11,02 | 2 480 | 265 831,20 |
| Этаж | Ед. изм. | Цена 1 м2, бел. руб. | |||
|---|---|---|---|---|---|
|
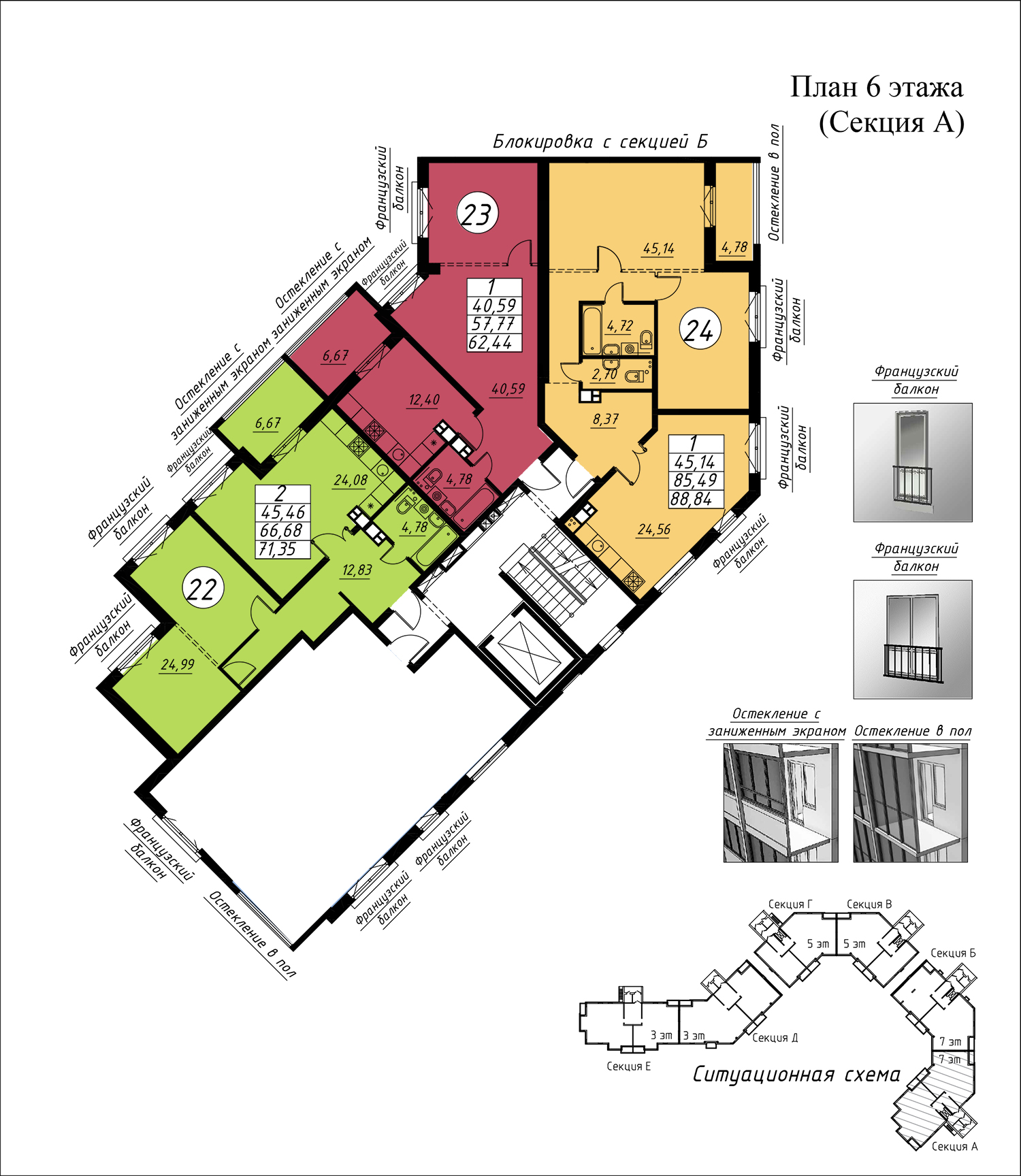
квартиры площадью 40,48 –73,34 м2 |
квартиры площадью 87,35 -139,73 м2 |
||||
| 2-6 | м2 | 2 670,0 | 2 500,0 | ||
| последний | м2 | 2 670,0 | 2 500,0 | ||






































